开云手机入口官网登录-开云(中国)

ELEVATOR DOOR SYSTEM电梯门系统

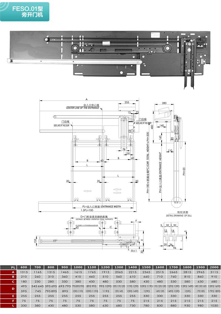
FESO.01型旁开门机